40
$649,900 Sale
Listed 43 days ago
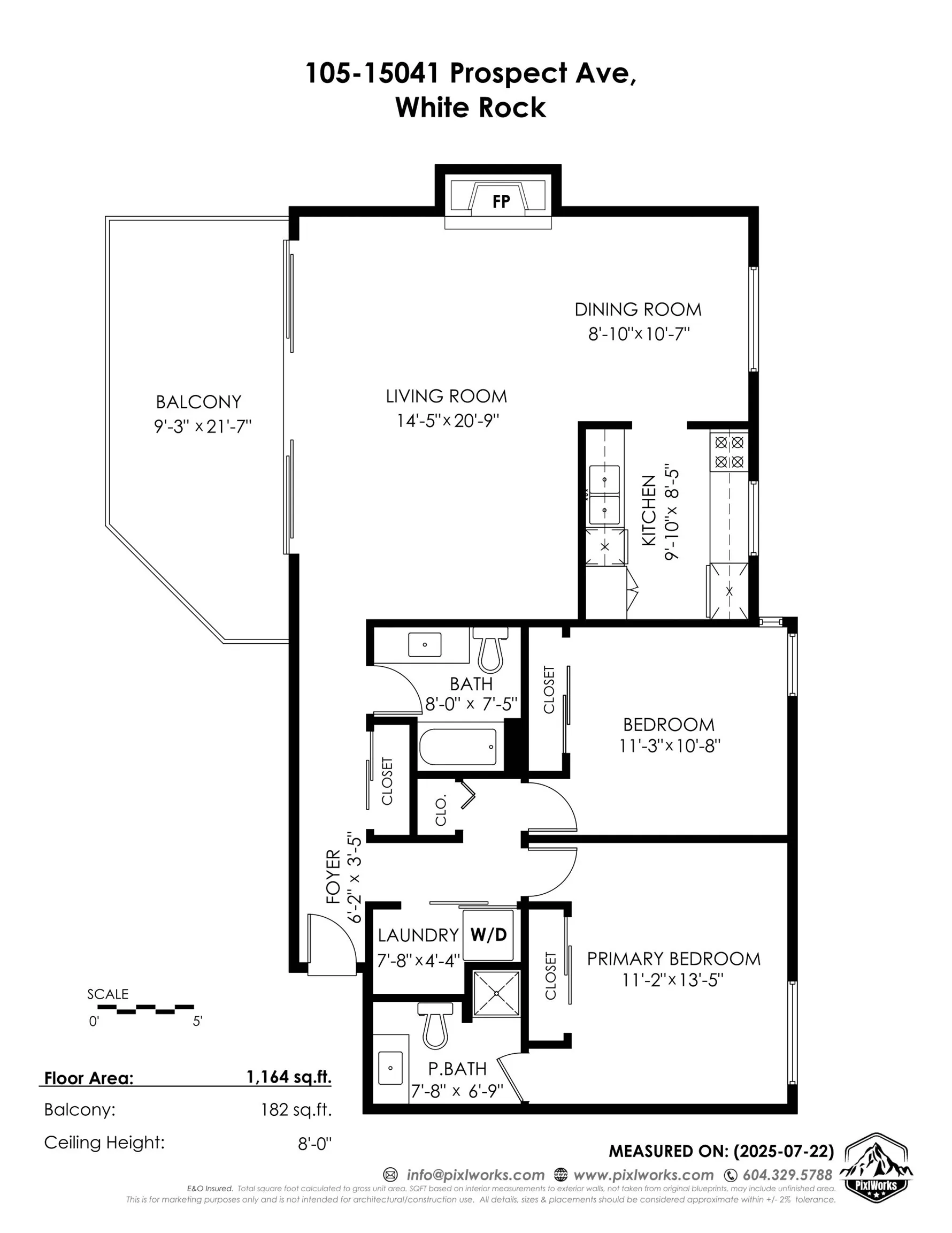
105 15041 Prospect Avenue
· 2
· 2
· 1
· 1164
Key Facts
Key facts for 105 15041 Prospect Avenue
Property Type
Condo
Parking
1 parking
MLS #
R3042463
Size
1164 sqft
Basement
None
Listed on
-
Lot size
-
Tax
$2,661.87 /yr
Days on Market
-
Year Built
1975
Maintenance Fee
$741.24 /mo
Description
Stunning Ocean View Condo at Sea Vista! Perched on White Rock’s coveted Prospect Avenue, this boutique building offers incredible ocean views. Renovated in 2025, this immaculate 2 bed, 2 bath corner unit features 1,164 sqft of bright, modern living with only one shared wall for added privacy and nat...ural light. All new kitchens and bathrooms, and a cozy gas fireplace (gas included in fees). The 182 sq ft south-facing balcony is perfect for entertaining. Well managed building with many updates! Exterior project just completed: new glass railings, vinyl decking, fascia, and fresh paint—are fully paid by the seller. Fully rainscreened. In-suite laundry, 1 parking, free street parking, and 1 storage included. Rentals allowed (no short-term). No pets/smoking. The perfect White Rock location!
Similar Properties (No results)
Room Types
Kitchen
-
Dimensions 8'5 x 9'10
82.76 sqft
Dining Room
-
Dimensions 10'7 x 8'10
93.49 sqft
Living Room
-
Dimensions 20'9 x 14'5
299.15 sqft
Courtesy of: Engel & Volkers Vancouver (Branch)