37
$1,789,000 Sale
Listed 21 hours ago
1 2680 E 5th Avenue
· 4
· 4
· 1
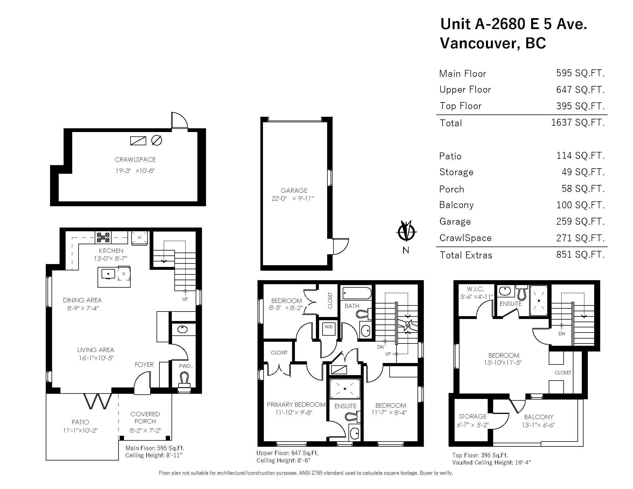
· 1637
Key Facts
Key facts for 1 2680 E 5th Avenue
Property Type
Townhome, 3 Storey
Parking
1 garage, 1 parking
MLS #
R3053931
Size
1637 sqft
Basement
None
Listed on
-
Lot size
-
Tax
$6,097.33 /yr
Days on Market
-
Year Built
2025
Maintenance Fee
$ 0 /mo
Description
This exceptionally well built and beautifully finished front half duplex offers the perfect blend of style, comfort and function. The open main floor showcases a stunning kitchen with Fisher & Paykel integrated appliances, gas range and large island. Eclipse doors seamlessly connect the living space... to a private patio and landscaped front yard. Upstairs features 3 bedrooms and 2 bathrooms, including a serene primary with ensuite. The top floor is a flexible retreat, ideal as a luxe primary suite with spa-like ensuite and covered balcony or perhaps a media room, or home office. Thoughtful details throughout like custom millwork & undersurface lighting. All in a popular East Van location close to schools, parks, and transit. Your opportunity to own Renfrew's nicest front duplex!
Similar Properties (No results)
Room Types
Living Room
-
Dimensions 10'5 x 16'1
167.53 sqft
Dining Room
-
Dimensions 7'4 x 8'9
64.17 sqft
Kitchen
-
Dimensions 8'7 x 13'
111.58 sqft
Courtesy of: Stilhavn Real Estate Services